EDITION 2026 IS NOW OPEN

 

CINÉPOLIS LUXURY CINEMAS

  • Prize
    Honorable Mention in Interior Design
  • Company/Firm
    rdc.
  • Lead Designer
    Jonathan Lopez, Assoc. Principal, Design Director
  • Other Designer(s)
    Architect: Mitra Esfandiari | AIA, Ron Bernhardt | AIA, Sing Tong | AIA, Adrienne Danet | AIA, Lana Smolskaya
  • Architect
    Mitra Esfandiari, AIA, Ron Bernhardt, AIA
  • Interior Designer
    Adrienne Danet, AIA
  • Hospitality
    Cinepolis Luxury Cinemas
  • Construction Company
    Moorefield Construction Inc.
  • Location
    Pacific Palisades, Los Angeles, USA
  • Project Date
    2019
  • Developer
    Caruso

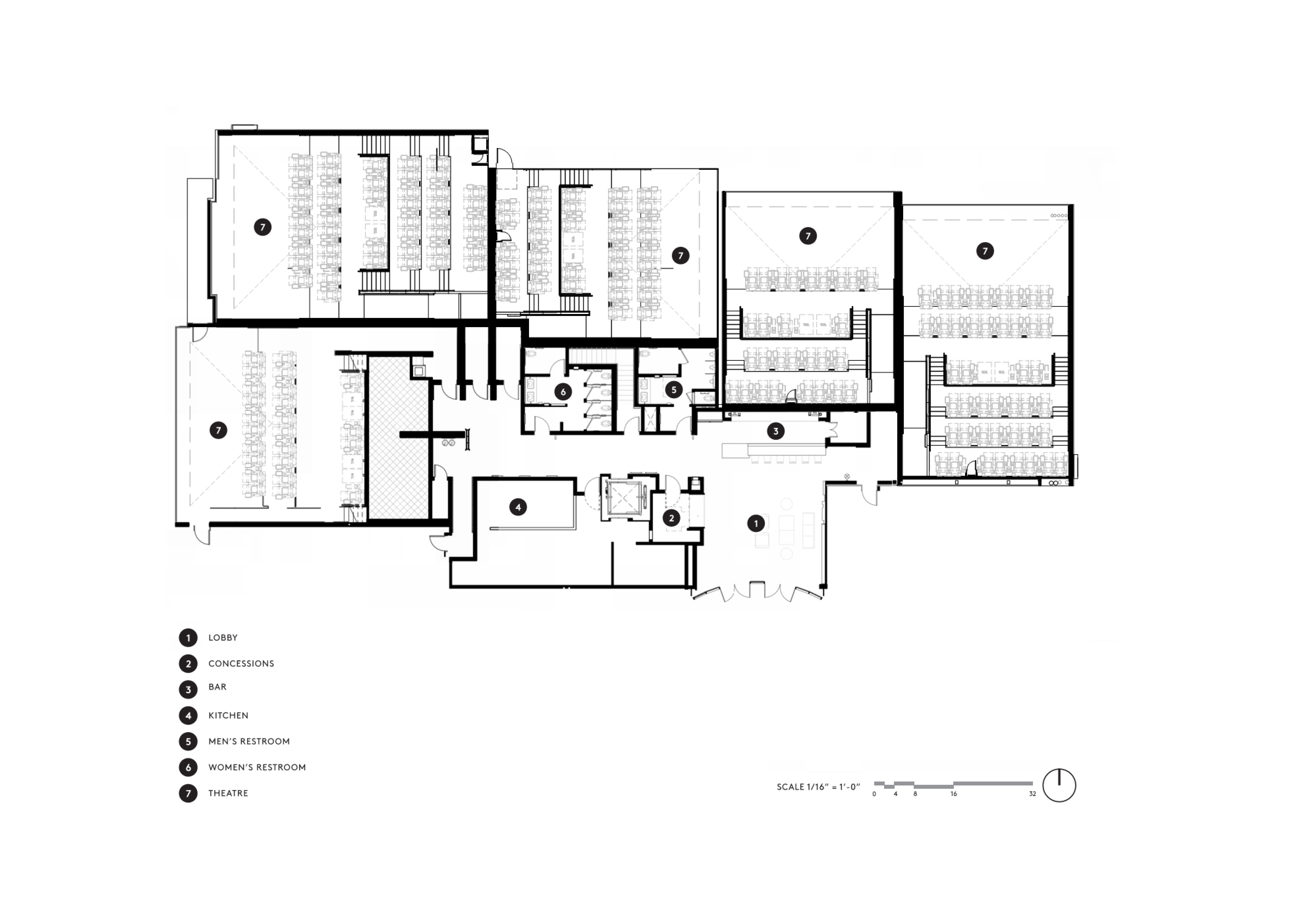
This new flagship theater for Cinépolis Luxury Cinemas at Caruso’s Palisades Village revives the historic Bay Theater in the heart of Pacific Palisades' downtown neighborhood. Cinépolis is the 4th largest global cinema brand had a goal to be authentic to the local coastal neighborhood, community scale while delivering their signature first-class, luxury dining and cinema experience.
The design crafts a concept of an intimate collection of five screening rooms connected with an appropriately scaled community lounge. Each aspect of the guest experience is thoughtfully choreographed from the arrival into the beach resort living room entry, concierge greeting, a welcoming full-service cocktail bar to the scaled gallery that leads into the intimate auditoria. A select palette of warm, weathered wood is accented with woven brass metal screens highlights the guest amenity areas.
This project is a new hospitality typology elegantly integrates ‘high touch’ and ‘high tech’ by blending of dining, F+B and entertainment. The design elevates the benchmark of customer experience, hospitality, regional sensitivity and creates a welcome destination as the anchor for the Pacific Palisades community




LIV Hospitality Design Awards 2026
Privacy Overview

This website uses cookies so that we can provide you with the best user experience possible. Cookie information is stored in your browser and performs functions such as recognising you when you return to our website and helping our team to understand which sections of the website you find most interesting and useful.