EDITION 2026 IS NOW OPEN

 

FARMER’S HOMESTEADS REGENERATION

  • Prize
    Honorable Mention in Architecture
  • Company/Firm
    Legend Group Co., Ltd / PRAXiS d' ARCHITECTURE
  • Lead Designer
    Shaohua Di
  • Other Designer(s)
    Yang Jialin, Cui Ying, Xu Xinxin
  • Architect
    Shaohua Di
  • Photo Credit
    PRAXiS d' ARCHITECTURE
  • Location
    Xiaopu, Beijing
  • Project Date
    2023
  • Developer
    Songzhuang Investment Co. Ltd.

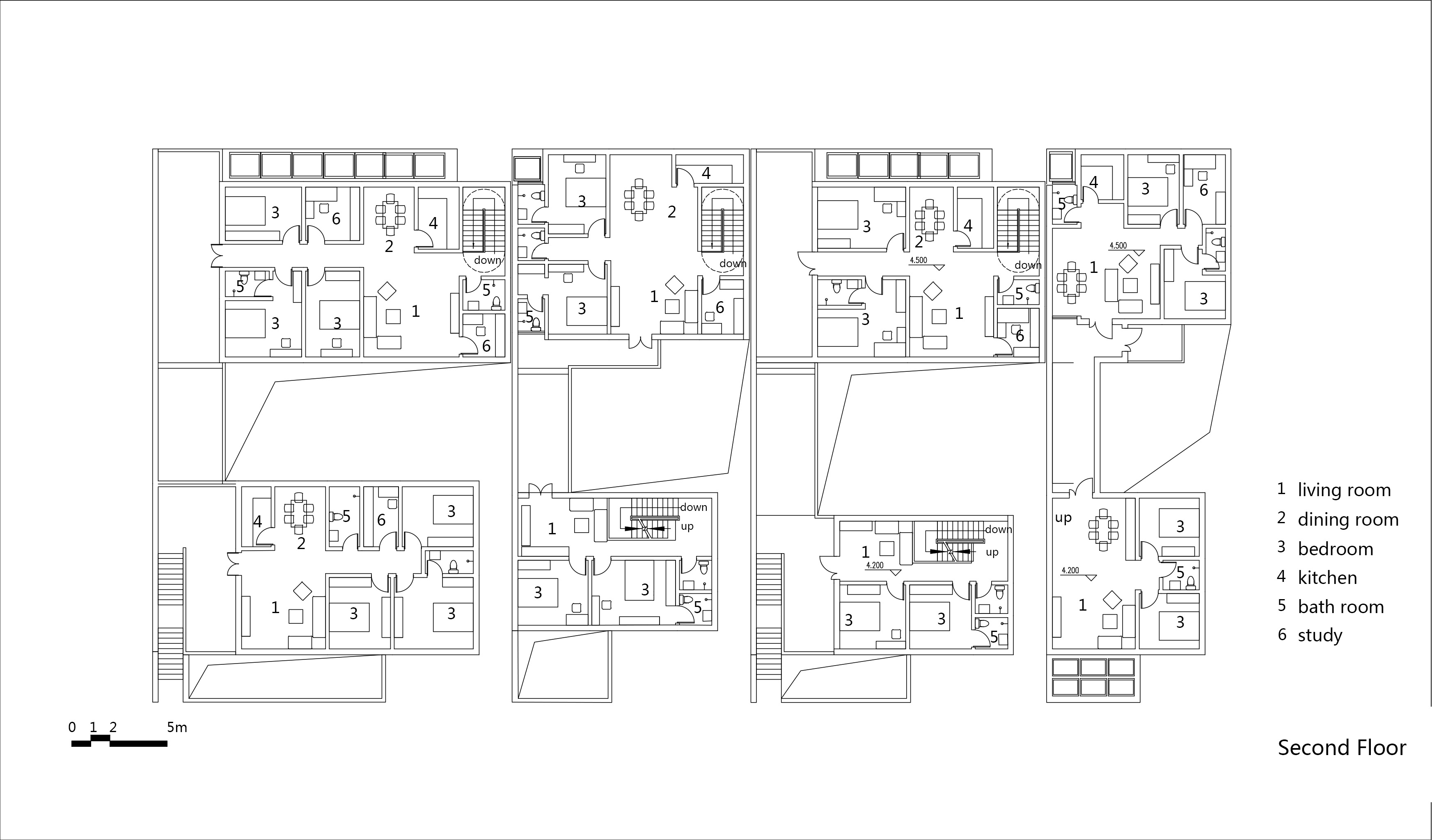
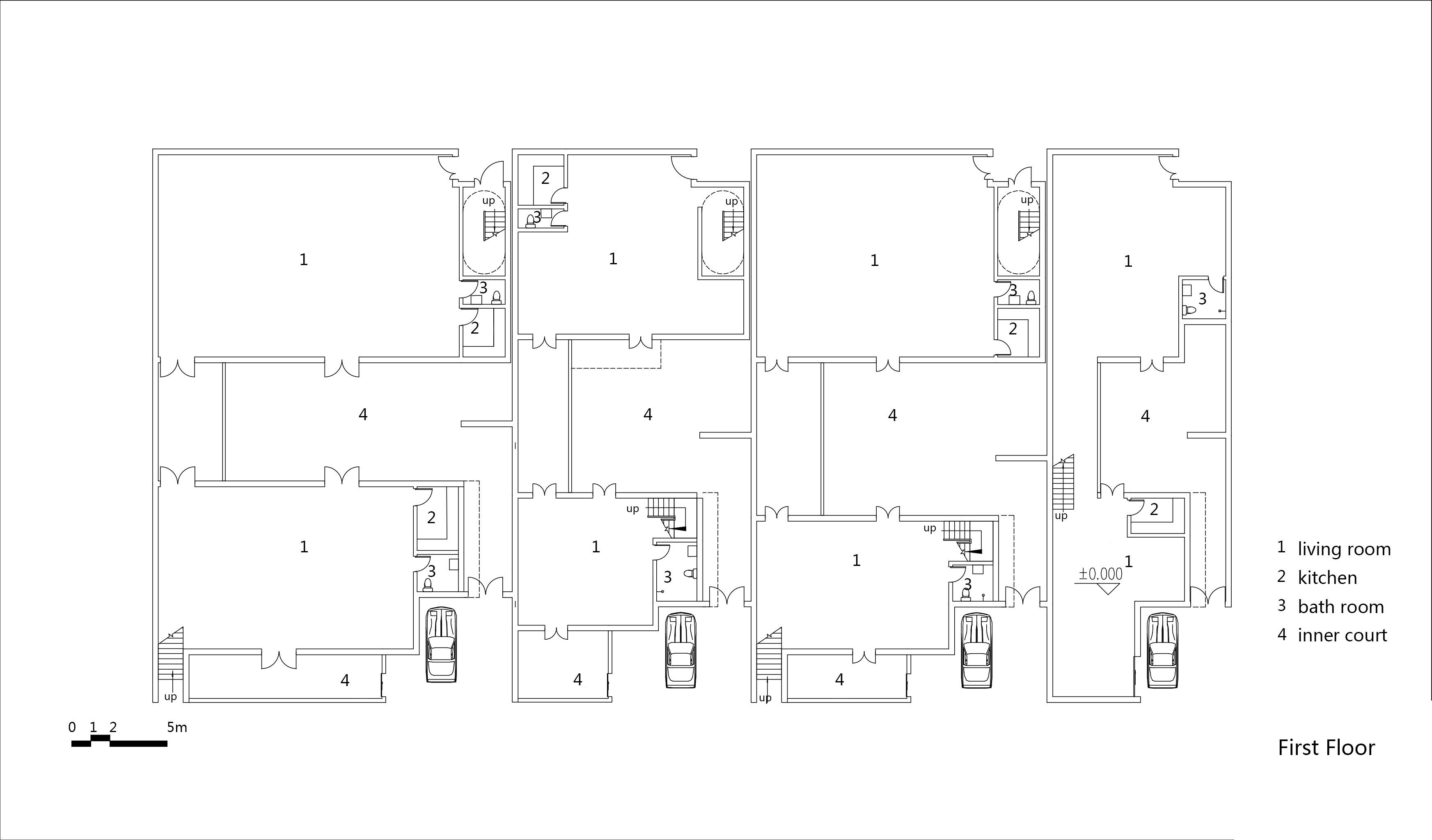
Known as the Painter’s Village, Xiaopu has undergone a series of changes in the process of urbanization in the past two decades. When an art community is naturally formed, it will bring business opportunities, so the community begins to evolve into a labeled “Art District”. In the process, the neighbourhood will lose its pristine quiet and low-cost environment that is critical to nurture creativity. As the entire area becomes commercialized, artists will gradually move away. The space thus freed up will be used by operators of arts or practitioners of emerging industries. These are the potential occupants of the homesteads regeneration. The traditional courtyard layout and gray brick walls were applied. The characteristics of the original village - sloped roofs - have also been retained, but in photovoltaic panels instead of traditional tile. The gables of each building is applied with concrete slabs of different colors, outlining the individuality of each household and enhancing openness of the main entrances along the street. Color is a remembrance of the natural painter's village, and it is also the hope of recalling a gradually lost temperature in the Internet age.

Bio
PRAXiS d'ARCHITECTURE was founded in 2009. Our design adopts an ingenious and harmonious approach to integrate architecture and its surroundings based on our understandings of the site's cultural and physical context. We strive to create extraordinary spatial experiences by using economic, Eco-friendly and local materials and available means of construction. Regardless of project scale, we seek to fully realize architecture’s practical values while fulfilling it with spirits. Shaohua Di is the founding principal of the firm. She holds a B.Arch from Tianjin University and an M.Arch from MIT.

Other prizes
Awards 2020 Design Educates Awards, Honorable Mention, Spring Art Museum, LAKA Foundation 2019 WAN Awards, Bauhaus Gold Prize, Tianyun Industrial Complex, UK 2019 Architecture Survey and Design Awards, Second prize, Tianyun Industrial Complex, China 2019 Master Architecture Prize, Firm of the year/Small Multidisciplinary, PRAXiS d’ ARCHITECTURE, US 2019 Master Architecture Prize, Winner, Tianyun Industrial Complex, US 2019 German Design Awards, Winner, Tianyun Industrial Complex, Germany 2018 The Chicago Athenaeum: Museum of Architecture and Design Awards, Spring Art Museum, US 2017 American Architecture Prize, Firm of the Year Awards Short listed, PRAXiS d’ARCHITECTURE, US 2017 Iconic Architecture Awards, Winner, Ying Gallery, Germany 2016 World Interior News Awards, Final winner, Importance of Walking Store, UK 2016 Iconic Architecture Awards, Winner, Spring Art Museum, Germany 2016 A’ Design Bronze Awards, Spring Art Museum, Italy 2016 Architizer A+Awards, Special Mention, PRAXiS d’ARCHITECTURE Studio (Dongfeng art District 11-1), US




LIV Hospitality Design Awards 2026
Privacy Overview

This website uses cookies so that we can provide you with the best user experience possible. Cookie information is stored in your browser and performs functions such as recognising you when you return to our website and helping our team to understand which sections of the website you find most interesting and useful.