EDITION 2026 IS NOW OPEN

 

skRES - a village house Renovation

  • Prize
    Honorable Mention in Interior Design
  • Company/Firm
    half AND half Studio
  • Lead Designer
    charles KWAN
  • Other Designer(s)
    WONG Fiona, Wong Aurora
  • Architect
    Charles Kwan
  • Photo Credit
    half AND half Studio
  • Location
    Sai Kung, Hong Kong
  • Project Date
    2022

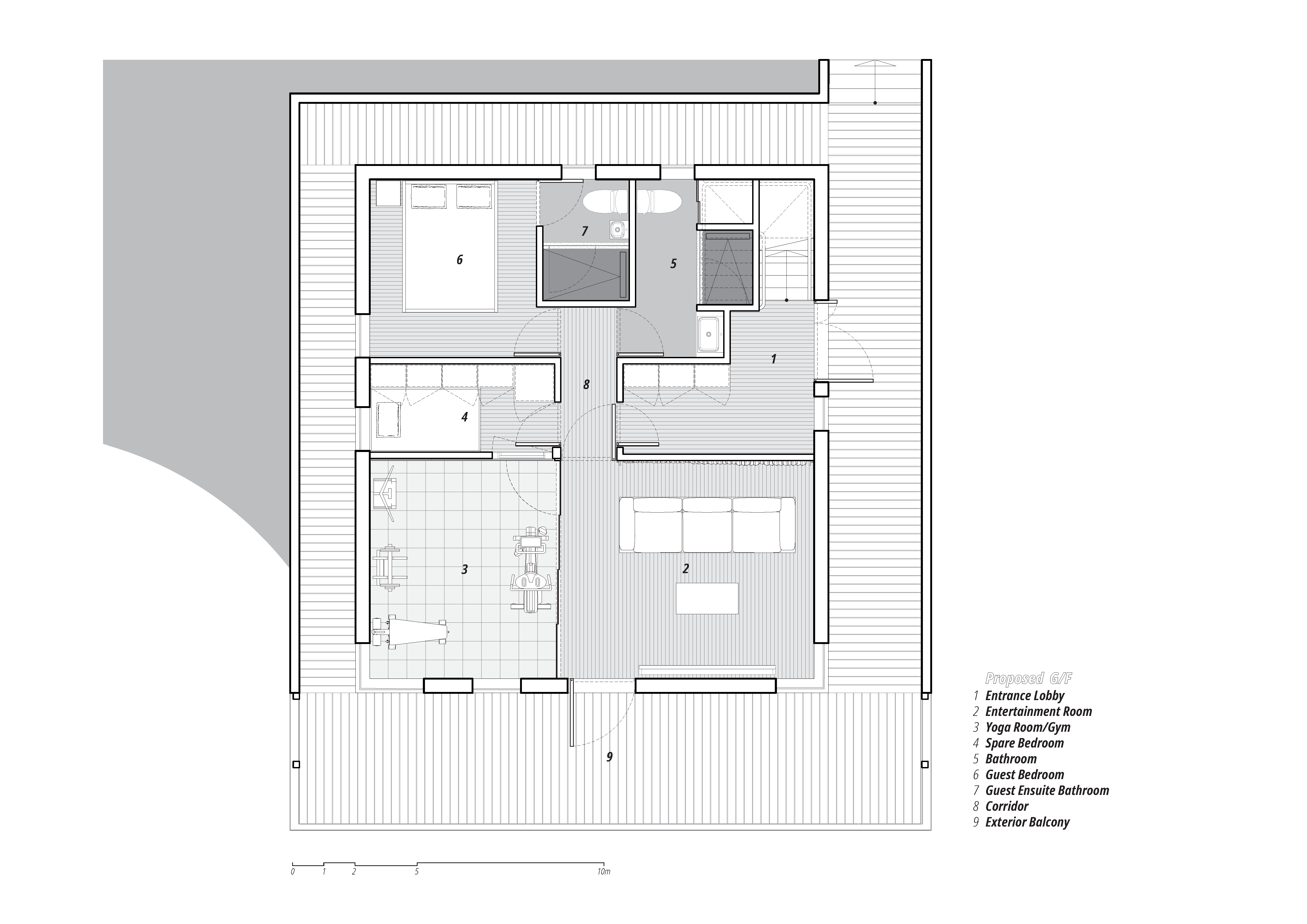
the PROBLEM

this is—

A renovation project bounded by the typical three-floor village-house typology of Hong Kong. The previous owner had divided the three floors into two separate living units, resulting in a lack of vertical connections and the horizontal division into too many small spaces.

A project initiated during the height of the pandemic, where every facet of life was drastically affected, called for a new mode of design thinking and design execution.

the user is—

A family of three, with a domestic assistant. Affected by the pandemic, working from home, learning from home, everything at-home, always at-home has become the adopted norm. Designing for this reality and future-proofing was a major consideration.

the SOLUTION

is to—

Strategically arrange the spaces so that the most public and open-plan activities are shifted to the higher levels, while the more secluded, personal spaces are located on the lower levels. This also allows for maximum sunlight to be taken advantage of on the top levels, while privacy and seclusion are maintained on the lower levels.

use—

Color strategically to enhance the psychological well-being of the occupants.




LIV Hospitality Design Awards 2026
Privacy Overview

This website uses cookies so that we can provide you with the best user experience possible. Cookie information is stored in your browser and performs functions such as recognising you when you return to our website and helping our team to understand which sections of the website you find most interesting and useful.