EDITION 2026 IS NOW OPEN

 

Legacy Tower

  • Prize
    Winner in Architectural Design Condominium
  • Company/Firm
    Kobi Karp Architecture and Interior Design, Inc
  • Lead Designer
    Kobi Karp
  • Location
    Miami - Florida - USA
  • Project Date
    2026

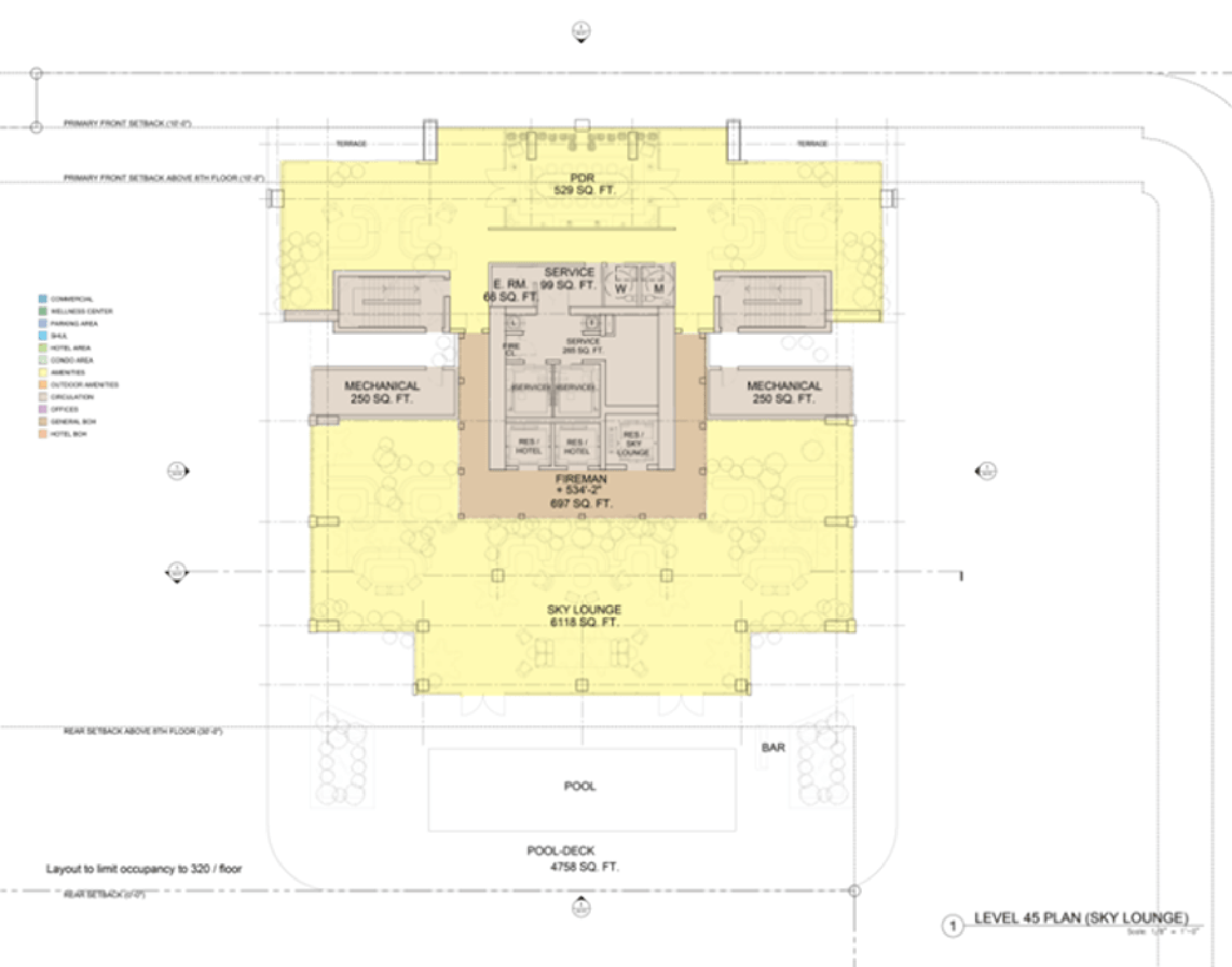
Legacy is the latest addition to the Miami World Center in downtown Miami, designed to cater to the luxury travel and lifestyle market. This groundbreaking mixed-use tower introduces several Miami firsts, including the city’s first rooftop atrium and event space, an international business lounge, and a state-of-the-art Center for Health & Performance. The development features a combination of 260 residential units, a 260-key hotel, and 50,000 square feet dedicated to wellness, along with an additional 60,000 square feet of luxurious amenities.
One of the most striking features of Legacy is its awe-inspiring rooftop atrium, which offers unparalleled views of Downtown Miami. The atrium includes a cantilevered infinity pool, complemented by lush gardens, outdoor and indoor seating areas, and a full-service bar. This sky-high oasis offers a unique experience for both residents and hotel guests, setting a new standard for luxury in the city.
The hotel portion of Legacy is equally impressive, with a grand 40-foot-high lobby, glass elevators, and a signature international restaurant.




LIV Hospitality Design Awards 2026
Privacy Overview

This website uses cookies so that we can provide you with the best user experience possible. Cookie information is stored in your browser and performs functions such as recognising you when you return to our website and helping our team to understand which sections of the website you find most interesting and useful.