EDITION 2026 IS NOW OPEN

 

Ryuutai Ondo

  • Prize
    Winner in Architectural Design Asia
  • Company/Firm
    AI Group Co., Ltd
  • Lead Designer
    Tomo Huang
  • Interior Designer
    Tomo Huang
  • Photo Credit
    Eric Ho
  • Location
    Taipei, Taiwan
  • Project Date
    2023/5

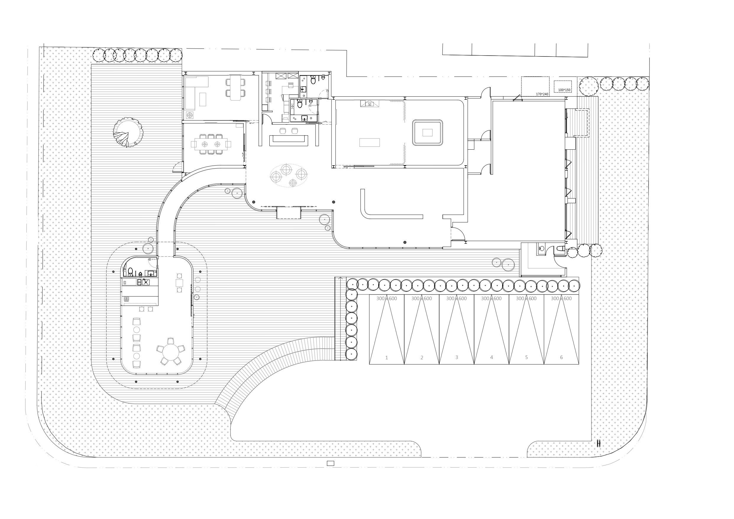
Ryuutai Ondo is a pop-up café attached to a real estate showroom. Its transparent design contrasts sharply with the surrounding buildings, arousing the curiosity of passersby.

The water-like glasshouse design allows passersby to see the volumes of the interior clearly and customers to see the scope of the building's base from inside. The shape of the glass corridor connecting the café and the reception center corresponds to the curved shape of the building base. The monolithic roof gives the illusion of an amorphous shape, and the use of recessed lights with hidden frames in the interior makes the space appear seamless.

Due to Ryuutai Ondo being a temporary facility, the building materials chosen are simple and largely recyclable. In addition, all the furniture used in the café can be passed on and used after the cafe is dismantled. The extremely translucent glass house design introduces a lot of natural light. Not only does it reduce energy consumption but also keeps the space warm, eliminating the need for artificial heating. The design is perfectly functional, and even though Ryuutai Ondo is a temporary space, it still retains a timeless feel.




LIV Hospitality Design Awards 2026
Privacy Overview

This website uses cookies so that we can provide you with the best user experience possible. Cookie information is stored in your browser and performs functions such as recognising you when you return to our website and helping our team to understand which sections of the website you find most interesting and useful.